| |
Address:
No.130 West Genta Road, Zhuji, Zhejiang, China¡¡¡¡
Telphone:
86-575-87105788¡¡
Fax: 86-575-87105781¡¡
Mobile: 86-13906857480
E-mail: jointhand@jointhand.net
Map of Area |
|
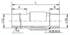
| ¡¡PE/STEEL TRANSITION PIPES |
| PE/Steel Transition Pipe Threaded |
|
 |
| Specifications |
|¦ÌD1 |
|¦Ì D2 |
L |
A |
B |
| 32 x 1" |
32 |
1" |
170 |
80 |
25 |
| 40 x 11/4" |
40 |
11/4" |
170 |
80 |
25 |
| 50 x 11/2" |
50 |
11/2" |
170 |
80 |
25 |
| 63 x 2" |
63 |
2" |
170 |
80 |
25 |
|